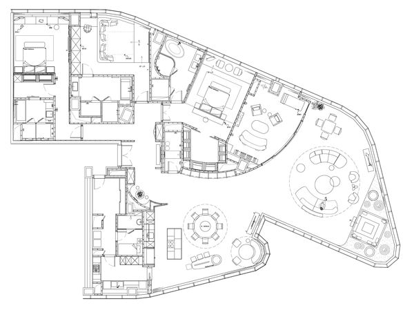
五一期间,北京最繁华的商业核心区三里屯迎来了一场设计与未来的碰撞。SPACExxs斯倍思设计团队携手通盈集团,在三里屯一号商业区呈现了他们探索未来人居空间设计的新作品,吸引了众多市民、设计师及行业人士驻足。



此次呈现以“探索未来人居空间”为主题,通过沉浸式场景、前瞻性空间设计,展现了SPACExxs斯倍思设计团队对未来居住方式的创新思考,体现了科技与美学的完美融合。 SPACExxs斯倍思设计团队表示:“我们希望通过这次全新的尝试,重新定义人与空间的关系,让居住不仅满足功能需求,更能激发生活灵感。”通盈集团相关负责人强调:“与斯倍思的合作是我们对未来高端生活方式的一次重要探索,三里屯一号作为北京的地标性项目,始终致力于引领前沿生活理念。”
【关于三里屯壹号】
三里屯一号公寓坐落于北京最具国际化氛围的朝阳区三里屯商圈,是通盈集团打造的住宅项目。项目集高端住宅、商业、艺术于一体,凭借其稀缺的地理位置、卓越的建筑品质及奢华的配套服务,成为北京高端人居市场的标杆之作。
【关于SPACExxs斯倍思设计】
SPACExxs斯倍思设计事务所是由建筑师、室内和产品设计师、CG艺术家组成的专业设计团队。倡导使用新的技术和多维度设计语言来支撑空间构造与环境视觉,探索更适合现代人需求的居住空间、商业空间以及建筑形态。
相关知识
开利携手菲斯曼 共同定义未来
唯美家携手慕思集团旗下品牌V6 Sleep 共同打造私人定制健康睡眠
"打造城市更新样本:乐乎公寓集团芷岸品牌的创新与服务"
设计「盈」地•盈趣智能高端设计交流会重庆站
东宝床垫携手盈锋家居打造周年盛会
三星中央空调携手上海格雷斯精选酒店打造时尚舒适的旅居空间
万师傅正式承接中盈置业菁英公寓开荒保洁服务项目-万师傅携手中盈置业 批量承接开荒保洁服务需求
美的集团携手装企革新战略合作 共同打造行业双赢风向标
京城家居市场谁最“卷”? 红星美凯龙期五一“夺魁榜”出炉!
中源家居携手企企通,共同构建家居领域智慧采购新模式
网址: SPACExxs斯倍思设计携手通盈集团,共同打造京城公寓三里屯一号 http://m.fulushijia.com/newsview71061.html